Accompagnement personnalisé
L'accompagnement de Jodi est une formule complète et personnalisée qui comprend un rendez-vous de 2h à votre domicile (Paris Intramuros, 92 ou en visio pour les projets à distance), une prise de cotation ainsi qu'un second rendez-vous d’1h en visio pour vous présenter le projet.
Pendant ce rendez-vous, nous ferons une visite de votre logement, je prendrais connaissance de votre projet de rénovation, de votre cahier des charges et de vos envies.
Nous travaillerons sur l'aménagement des espaces, la recomposition des volumes afin d'optimiser votre logement pour le rendre fonctionnel et esthetique.
En vous conseillant des solutions durables ainsi qu’une sélection de matériaux, mobilier et luminaires, nous valoriserons votre logement et le rendrons plus agréable à vivre. Ensemble, nous créerons une ambiance décorative personnalisée, refletant votre personnalité et votre façon de vivre.
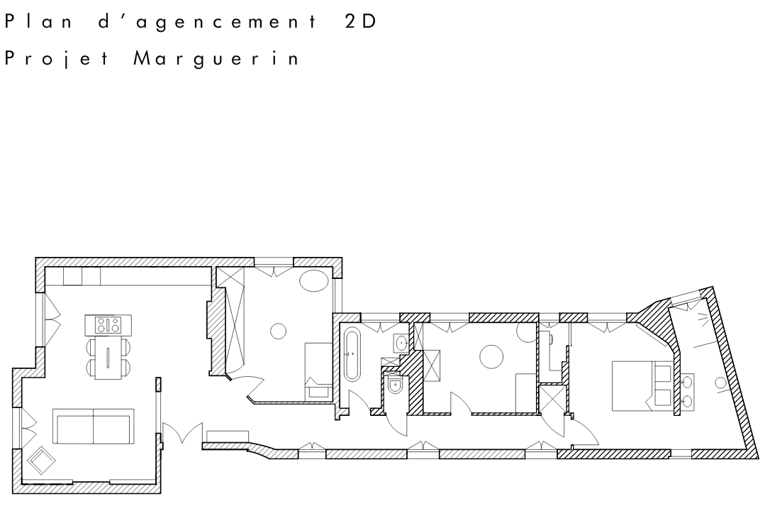
Grâce aux propositons d’agencement sur plan 2D et aux visuels 3D incluent dans cette formule, vous pourrez vous projeter facilement, visualiser votre projet et appréhender les volumes.
Cette formule est pour vous si :
Vous avez un projet de rénovation mais vous êtes indécis et vous souhaitez pouvoir vous projeter à l'aide de visuel 3D avant de vous lancer dans les travaux.
Vous souhaitez déléguer la partie conception esthétique et aménagement de votre projet et être accompagné sur le choix de matériaux, mobilier, décoration.
Vous voulez pouvoir vivre dans un logement optimisé qui correspond à votre façon de vivre et à votre image.
Je serai disponible par email et par téléphone pour ajuster les propositions jusqu’à la fin du projet.
LA FORMULE ACCOMPAGNEMENT DE JODI COMPREND:
À partir de 880 euros pour un projet de 25 m2 (Au delà, sur devis)
En complément, Jodi vous propose d'autres prestations pour s'adapter à vous et à vos projets:
Home staging
Visite de votre bien afin de cibler les éléments à rafraichir, les pièces à désencombrer ou à dépersonnaliser. Conseils immédiats pour réagencer l’espace, mettre en avant les volumes et le cachet de l’appartement ou la maison avec des astuces déco rapides et économiques. Une décoration plus neutre et un environnement sain permettra à chacun de se projeter. Après avoir effectués ces petits travaux, vous pourrez vendre ou louer au bon prix, plus rapidement. RDV à domicile d’1H30 puis compte rendu envoyé par email.
380 euros pour un logement jusqu'à 50 m2 (au delà sur devis)








